Capannone in vendita

Carasco, Via Pian di Rocco
€ 440.000
3 locali 3 locali
800 Mq 800 Mq
2 bagni 2 bagni

Capannone in vendita

Carasco, Via Pian di Rocco

Questo immobile appartiene ad un'unità principale con metratura più ampia

Descrizione annuncio

COSA SAPERE DELL'IMMOBILE

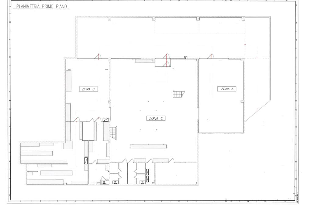
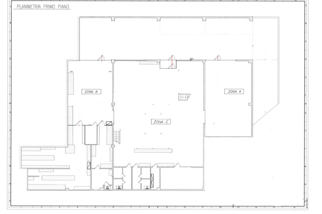
CARASCO - CAPANNONE - 800 MQ

DESCRIZIONE E PARTICOLARITA'

Proponiamo in vendita porzioni di capannone con le seguenti caratteristiche:

- superficie commerciale di circa 800 MQ totali

- suddiviso in 3 porzioni locate ognuna con proprio ingresso

- canone annuo complessivo di 33.600,00 €

- sito in zona industriale di Carasco

- comodo all'uscita autostradale di Lavagna

UBICAZIONE E CONTESTO
Carasco è un comune di circa 3.000 abitanti.

Mostra tutto

Nelle vicinanze

Trasporto pubblico Trasporto pubblico
Trasporto pubblico
380 m
Ricariche auto elettriche Ricariche auto elettriche
COOP CC I Leudi by Duferco
820 m
Euronics Dimo San Salvatore
2,5 Km
Scuole Scuole
Primaria
650 m
Istituto Comprensivo Valli e Carasco
650 m
Secondaria "Luigi Bacigalupo"
670 m
Scuola Materna S.G.Bosco
2,8 Km
Farmacia Farmacia
Farmacia Moderna
760 m
Farmacia delle Grazie
2,7 Km
Supermercati Supermercati
Ipercoop
800 m
Tuodì Superfresco
2,8 Km
Negozi Negozi
Negozi
1,7 Km
Ristoranti Ristoranti
Locanda Balanzone
310 m
Al Cioso
1,7 Km
Ou Settembrin
1,8 Km
La Cava
2,2 Km
Antico Borgo
2,7 Km
Mostra tutto

Caratteristiche

Rif.:
61152258
Piano:
Alto
Condizionamento:
Autonomo
Ascensore:
No
Riscaldamento:
Autonomo
Libero:
No
Mostra tutto
Prezzo Prezzo
€ 440.000
Rata mutuo Rata mutuo
€ 2.074 / mese
Spese annue Spese annue
€ 0
Proponi il tuo prezzoProponi il tuo prezzo

Altre caratteristiche

Descrizione dei locali
Bagno antibagno

Classe Energetica

Questo immobile è esente da classe energetica
Anno di costruzione:
1990
Riscaldamento:
Autonomo
Tipo impianto:
Ad aria
Tipo alimentazione:
Aria

Ti interessa visionare l'immobile?

Fissa un appuntamento  Fissa un appuntamento

Richiedi informazioni

Clicca su Leggi per aprire l'informativa
* Questi campi sono obbligatori

Calcola il tuo mutuo

Semplice e senza impegno
Anticipo

( % )
Mutuo

( % )

pochi semplici passi

inserisci i tuoi dati
Questionario completato
Grazie per aver richiesto un appuntamento senza impegno con un nostro Consulente del Credito e Assicurativo.

Hai inserito correttamente tutti i dati necessari e a breve riceverai una e-mail con un link da convalidare per inviare i tuoi dati.
Affiliato
Industriale Levante Srl
P.zza Della Franca, 7/8 16043 Chiavari (GE)

Il nostro staff


  • Nicola D'Accunto
    Affiliato

  • Danilo Alejandro Demartini
    Collaboratore

  • Francesca Marina
    Coordinatrice

  • Pablo Daniel Marzioni
    Collaboratore

  • Marta Poggianti
    Collaboratrice
P.zza Della Franca, 7/8 16043 Chiavari (GE)
Zona: Provincia Levante
Mostra su mappa
Affiliato
Industriale Levante Srl
P.zza Della Franca, 7/8 16043 Chiavari (GE)

2026 Tecnocasa Franchising S.p.A. - P. IVA 08365160152 - Via Monte Bianco 60/A 20089 Rozzano (MI). Ogni agenzia ha un proprio titolare ed è autonoma. Privacy policy | Policy utilizzo | Cookie policy