Capannone in vendita

Carasco, Via Domenico Norero
€ 395.000
4 locali 4 locali
900 Mq 900 Mq
1 bagno 1 bagno

Capannone in vendita

Carasco, Via Domenico Norero

Descrizione annuncio

COSA SAPERE DELL'IMMOBILE

CARASCO - CAPANNONE - 900 MQ

DESCRIZIONE E PARTICOLARITA'
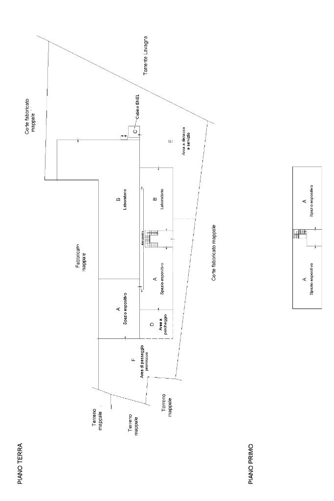
Trattasi di capannone di circa 900 mq diviso su due livelli:

PIANO TERRA

- superficie commerciale di 450 mq

- area esterna anteriore di 80 mq circa

- area esterna posteriore di circa 40 mq circa

- accesso carrabile sul retro (4m x 3,70m)

- altezza interna 4 m

- area magazzino carrabile di circa 200 mq

- doppio accesso

- vetrine (8m x 3,30 m)

Si accede al piano primo tramite scalinata in marmo (possibilità di installare montacarichi esterno)

PIANO PRIMO

- superficie commerciale di circa 450 mq

- finestrato, molto luminoso

- servizio igienico con antibagno

La via sulla quale affaccia è ad alto scorrimento veicolare.

UBICAZIONE E CONTESTO

San Colombano Certenoli è un comune di circa 2.000 abitanti.

Mostra tutto

Nelle vicinanze

Trasporto pubblico Trasporto pubblico
Trasporto pubblico
1,7 Km
Ricariche auto elettriche Ricariche auto elettriche
COOP CC I Leudi by Duferco
2,4 Km
Scuole Scuole
Primaria
2,2 Km
Istituto Comprensivo Valli e Carasco
2,3 Km
Secondaria "Luigi Bacigalupo"
2,3 Km
Farmacia Farmacia
Farmacia Moderna
2,4 Km
Farmacia
2,8 Km
Supermercati Supermercati
Ipercoop
2,4 Km
Negozi Negozi
Negozi
2,5 Km
Ristoranti Ristoranti
Locanda Balanzone
1,9 Km
La Cava
2,2 Km
Al Cioso
2,5 Km
Osteria Pepen
2,8 Km
Osteria Genin
2,8 Km
Mostra tutto

Caratteristiche

Rif.:
61180129
Piano:
2 di 2 (Piano su più livelli)
Condizionamento:
Assente
Ascensore:
No
Riscaldamento:
Assente
Libero:
No
Mostra tutto
Prezzo Prezzo
€ 395.000
Rata mutuo Rata mutuo
€ 1.845 / mese
Spese annue Spese annue
€ 0
Proponi il tuo prezzoProponi il tuo prezzo

Altre caratteristiche

Classe Energetica

Questo immobile è esente da classe energetica
Anno di costruzione:
1992
Riscaldamento:
Assente

Ti interessa visionare l'immobile?

Fissa un appuntamento  Fissa un appuntamento

Richiedi informazioni

Clicca su Leggi per aprire l'informativa
* Questi campi sono obbligatori

Calcola il tuo mutuo

Semplice e senza impegno
Anticipo

( % )
Mutuo

( % )

pochi semplici passi

inserisci i tuoi dati
Questionario completato
Grazie per aver richiesto un appuntamento senza impegno con un nostro Consulente del Credito e Assicurativo.

Hai inserito correttamente tutti i dati necessari e a breve riceverai una e-mail con un link da convalidare per inviare i tuoi dati.
Affiliato
Industriale Levante Srl
P.zza Della Franca, 7/8 16043 Chiavari (GE)

Il nostro staff


  • Nicola D'Accunto
    Affiliato

  • Pablo Daniel Marzioni
    Collaboratore

  • Marta Poggianti
    Collaboratrice
P.zza Della Franca, 7/8 16043 Chiavari (GE)
Zona: Provincia Levante
Mostra su mappa
Affiliato
Industriale Levante Srl
P.zza Della Franca, 7/8 16043 Chiavari (GE)

2026 Tecnocasa Franchising S.p.A. - P. IVA 08365160152 - Via Monte Bianco 60/A 20089 Rozzano (MI). Ogni agenzia ha un proprio titolare ed è autonoma. Privacy policy | Policy utilizzo | Cookie policy