Negozio in affitto

Chiavari, Salita Levaggi
€ 980 / mese
1 locale 1 locale
80 Mq 80 Mq
1 bagno 1 bagno

Negozio in affitto

Chiavari, Salita Levaggi

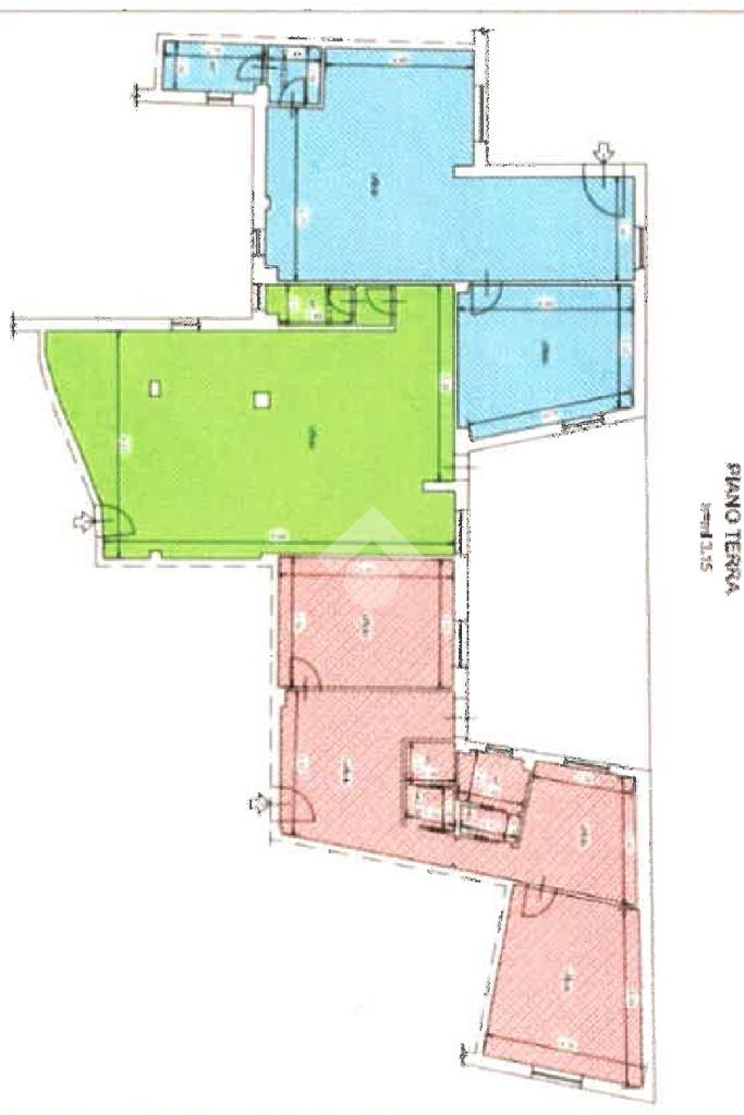
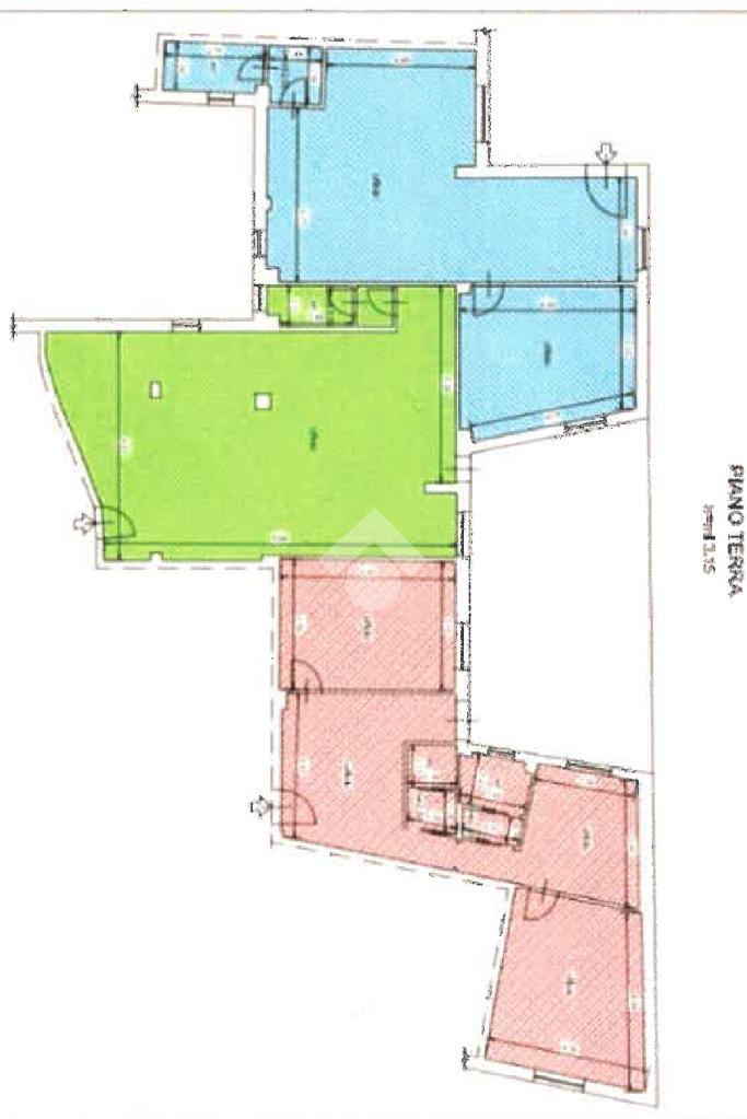
Questo immobile appartiene ad un'unità principale con metratura più ampia

Descrizione annuncio

COSA SAPERE DELL'IMMOBILE

CHIAVARI - UFFICIO - 80 MQ

DESCRIZIONE E PARTICOLARITA'
Trattasi di locale commerciale posto al piano terra.

- superficie commerciale 80 MQ circa

- 1 vano

- 1 servizio igienico con antibagno

- riscaldamento a pompe di calore

- categoria catastale A10

- predisposizione aria condizionata

- posizione comoda al centro

- ottima soluzione per studi medici, professionali etc.

CONTRATTO

- standard commerciale 6+6

- garanzie info in agenzia

- canone non soggetto a iva

UBICAZIONE E CONTESTO
Chiavari è un comune di circa 30.000 abitanti, nota meta turistica con affaccio sul mare.

Mostra tutto

Nelle vicinanze

Trasporto pubblico Trasporto pubblico
stazione di Chiavari
stazione di Chiavari
460 m
Lavagna
Lavagna
2,4 Km
Trasporto pubblico
70 m
Ricariche auto elettriche Ricariche auto elettriche
Duferco Chiavari
620 m
Euronics Dimo San Salvatore
2,7 Km
Scuole Scuole
Scuole
80 m
Istituto Tecnico Statale
140 m
Giovanni Caboto
140 m
Scuola Pubblicitaria
150 m
Istituto Assarotti
150 m
Farmacia Farmacia
Farmacia San Giovanni
200 m
Farmacia Podestà
240 m
Farmacia Bellagamba
440 m
Farmacia Centrale
450 m
Farmacia dei frati
850 m
Ospedali Ospedali
Polo Ospedaliero di Chiavari
150 m
Ospedale di Lavagna
2,1 Km
Supermercati Supermercati
CRAI
110 m
Carrefour Express
160 m
Basko
320 m
Gulliver
430 m
Dì per Dì
540 m
Negozi Negozi
Panificio Piombo
80 m
Antico Forno
90 m
Abbigliamento Botto
280 m
Balin.. Pan e Fügassa
290 m
Panificio Luca
310 m
Bar Bar
Corallo Café
90 m
Bar
160 m
Tossini
230 m
Bar della Posta
250 m
La Mattonella
250 m
Ristoranti Ristoranti
Nauroz
80 m
Osteria da Ivo
200 m
Luchin
250 m
Osteria da Vittorio
280 m
Ristorante Pizzeria Il Convivio
330 m
Mostra tutto

Caratteristiche

Rif.:
61140304
Piano:
Terra
Condizionamento:
Predisposizione impianto
Ascensore:
No
Riscaldamento:
Autonomo
Libero:
Mostra tutto
Prezzo Prezzo
€ 980 / mese
Spese annue Spese annue
€ 0

Altre caratteristiche

Descrizione dei locali
Bagno antibagno

Classe Energetica

Questo immobile è esente da classe energetica
Anno di costruzione:
1970
Riscaldamento:
Autonomo
Tipo impianto:
Ad aria
Tipo alimentazione:
Aria

Ti interessa visionare l'immobile?

Fissa un appuntamento  Fissa un appuntamento

Richiedi informazioni

Clicca su Leggi per aprire l'informativa
* Questi campi sono obbligatori
Affiliato
Industriale Levante Srl
P.zza Della Franca, 7/8 16043 Chiavari (GE)

Il nostro staff


  • Nicola D'Accunto
    Affiliato

  • Danilo Alejandro Demartini
    Collaboratore

  • Francesca Marina
    Coordinatrice

  • Pablo Daniel Marzioni
    Collaboratore

  • Marta Poggianti
    Collaboratrice
P.zza Della Franca, 7/8 16043 Chiavari (GE)
Zona: Provincia Levante
Mostra su mappa
Affiliato
Industriale Levante Srl
P.zza Della Franca, 7/8 16043 Chiavari (GE)

2026 Tecnocasa Franchising S.p.A. - P. IVA 08365160152 - Via Monte Bianco 60/A 20089 Rozzano (MI). Ogni agenzia ha un proprio titolare ed è autonoma. Privacy policy | Policy utilizzo | Cookie policy