Negozio in affitto

Chiavari, Via Giuseppe Bontà
€ 1.400 / mese
1 locale 1 locale
88 Mq 88 Mq
1 bagno 1 bagno

Negozio in affitto

Chiavari, Via Giuseppe Bontà

Descrizione annuncio

COSA SAPERE DELL'IMMOBILE

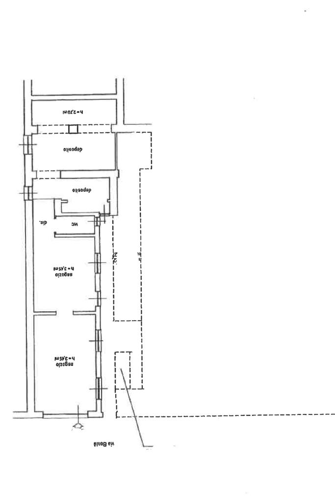
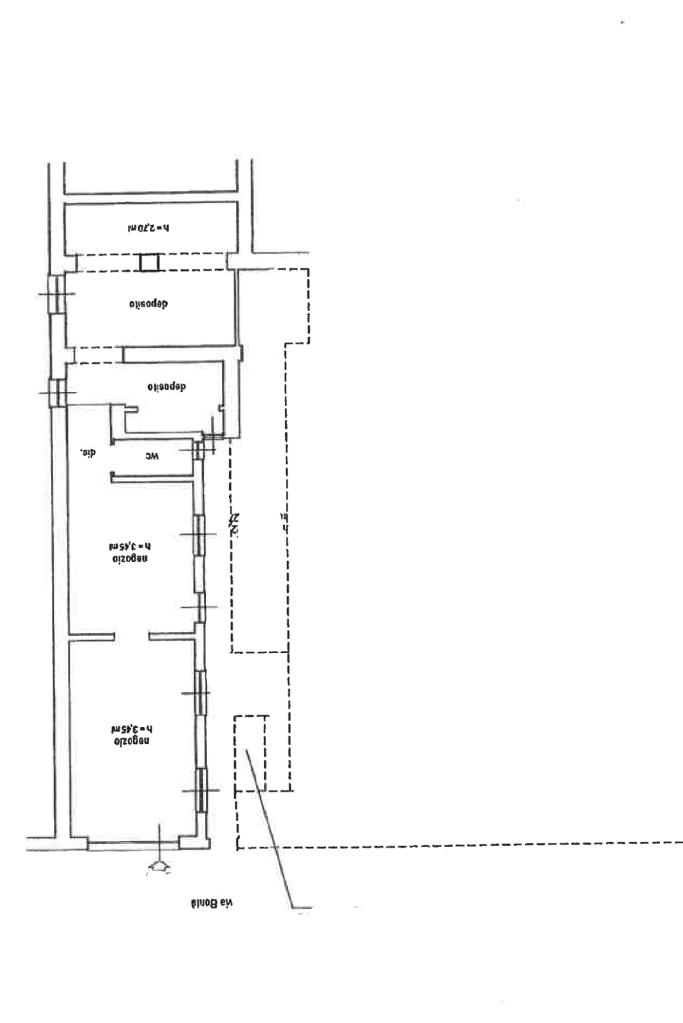
CHIAVARI - NEGOZIO - 90 MQ

DESCRIZIONE E PARTICOLARITA'

Trattasi di locale commerciale posto al piano terra con le seguenti caratteristiche:

- superficie commerciale di 88 MQ circa

- 3 vani

- 1 servizio igienico

- 1 vetrina su strada

- nessuna spesa condominiale

- 3 finestre

- condizionatore caldo/freddo

CONTRATTO

- standard commerciale 6+6

- garanzie info in agenzia

- canone non soggetto a iva

UBICAZIONE E CONTESTO

Chiavari è un comune di circa 30.000 abitanti, nota meta turistica con affaccio sul mare.

Mostra tutto

Nelle vicinanze

Trasporto pubblico Trasporto pubblico
stazione di Chiavari
stazione di Chiavari
510 m
Lavagna
Lavagna
1,8 Km
Trasporto pubblico
140 m
Ricariche auto elettriche Ricariche auto elettriche
Duferco Chiavari
470 m
Euronics Dimo San Salvatore
2,6 Km
Scuole Scuole
Chiostro di San Francesco
80 m
Scuole
90 m
Scuole
420 m
Liceo Artistico Statale Luzzati
430 m
Scuola Pubblicitaria
440 m
Farmacia Farmacia
Farmacia Bellagamba
140 m
Farmacia dei frati
290 m
Farmacia Podestà
340 m
Farmacia San Giovanni
370 m
Farmacia Centrale
980 m
Ospedali Ospedali
Polo Ospedaliero di Chiavari
510 m
Ospedale di Lavagna
1,6 Km
Supermercati Supermercati
In's
140 m
Dì per Dì
190 m
Supermercati
200 m
Gulliver
300 m
Carrefour Express
350 m
Negozi Negozi
Bruno & Pietro
160 m
Balin.. Pan e Fügassa
310 m
Negozi
330 m
Antico Forno
550 m
Panificio Piombo
620 m
Bar Bar
Vinoteca
30 m
Bar
140 m
La Mattonella
310 m
Bar Davide
320 m
Tossini
380 m
Ristoranti Ristoranti
Capo Borgo
60 m
Pizzaria N.6
190 m
bottega nazionale
230 m
Pizzeria Happy Hour 2
240 m
Pizzeria Verdi
270 m
Mostra tutto

Caratteristiche

Rif.:
61168699
Piano:
Terra
Condizionamento:
Autonomo
Ascensore:
No
Riscaldamento:
Autonomo
Libero:
No
Mostra tutto
Prezzo Prezzo
€ 1.400 / mese
Spese annue Spese annue
€ 0

Altre caratteristiche

Descrizione dei locali
Bagno Cieco

Classe Energetica

Questo immobile è esente da classe energetica
Anno di costruzione:
1960
Riscaldamento:
Autonomo
Tipo impianto:
Ad aria
Tipo alimentazione:
Aria

Ti interessa visionare l'immobile?

Fissa un appuntamento  Fissa un appuntamento

Richiedi informazioni

Clicca su Leggi per aprire l'informativa
* Questi campi sono obbligatori
Affiliato
Industriale Levante Srl
P.zza Della Franca, 7/8 16043 Chiavari (GE)

Il nostro staff


  • Nicola D'Accunto
    Affiliato

  • Danilo Alejandro Demartini
    Collaboratore

  • Francesca Marina
    Coordinatrice

  • Pablo Daniel Marzioni
    Collaboratore

  • Marta Poggianti
    Collaboratrice
P.zza Della Franca, 7/8 16043 Chiavari (GE)
Zona: Provincia Levante
Mostra su mappa
Affiliato
Industriale Levante Srl
P.zza Della Franca, 7/8 16043 Chiavari (GE)

2026 Tecnocasa Franchising S.p.A. - P. IVA 08365160152 - Via Monte Bianco 60/A 20089 Rozzano (MI). Ogni agenzia ha un proprio titolare ed è autonoma. Privacy policy | Policy utilizzo | Cookie policy