Capannone in vendita

Recco, Via Ponte Di Vexina - Corticella
€ 425.000
1 locale 1 locale
860 Mq 860 Mq
1 bagno 1 bagno

Capannone in vendita

Recco, Via Ponte Di Vexina - Corticella

Descrizione annuncio

COSA SAPERE DELL'IMMOBILE

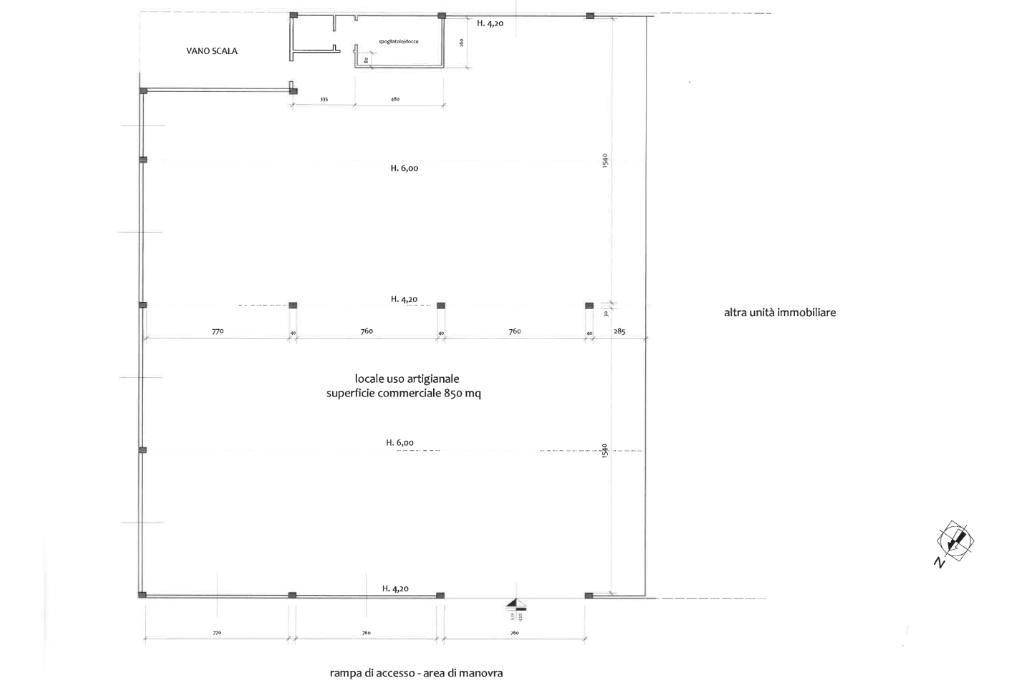
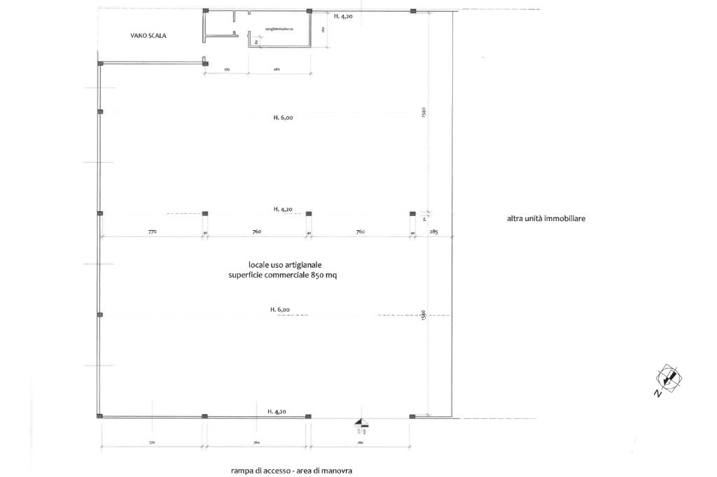
RECCO - CAPANNONE - 860 MQ

DESCRIZIONE E PARTICOLARITA'

Trattasi di capannone con le seguenti caratteristiche:

- superficie commerciale 860 mq circa

- piano primo

- accesso carrabile

- servizio igienico con antibagno

- zona ufficio

- nessuna spesa condominiale

- accesso carrabile tramite salita

- categoria catastale D1

UBICAZIONE E CONTESTO

Recco è un comune di circa 9.000 abitanti, nota meta turistica con affaccio sul mare

Mostra tutto

Nelle vicinanze

Trasporto pubblico Trasporto pubblico
Recco
Recco
2,4 Km
Trasporto pubblico
30 m
Capolinea Autobus
Capolinea Autobus
2,4 Km
Ricariche auto elettriche Ricariche auto elettriche
FERA Municipio di Recco
2,4 Km
Scuole Scuole
Scuola Fabrzio De André
880 m
Liceo Scientifico Statale Nicoloso da Recco
2,1 Km
Scuole
2,2 Km
Scuola primaria e secondaria di 1° grado
2,2 Km
Farmacia Farmacia
Farmacia
670 m
Farmacia Berni
1,2 Km
Falqui
2,5 Km
Farmacia Savio
2,5 Km
Supermercati Supermercati
Ekom
510 m
Supermercati
970 m
Eurospin
1,9 Km
Coop
2,3 Km
Supermercato Picasso DORO
2,4 Km
Negozi Negozi
Panificio Cantina
780 m
La bottega di Dede
1,5 Km
Focaccia in PIazzetta
2,1 Km
Carrefour Express
2,1 Km
Talento Naturale
2,1 Km
Bar Bar
Bar Europa
1,2 Km
Bar Olimpia
1,5 Km
Bar Massone
2,1 Km
Bar New Peragallo
2,1 Km
L'Angolo del Caffè
2,4 Km
Ristoranti Ristoranti
Ristorante Da Angelo
640 m
La Meridiana
710 m
Antica Osteria Rasin
980 m
Ristorante Vitturin 1860
1,2 Km
La Baita
1,2 Km
Mostra tutto

Caratteristiche

Rif.:
60993782
Piano:
1 di 1 (Piano rialzato)
Condizionamento:
Assente
Ascensore:
No
Riscaldamento:
Assente
Libero:
Mostra tutto
Prezzo Prezzo
€ 425.000
Rata mutuo Rata mutuo
€ 2.003 / mese
Spese annue Spese annue
€ 0
Proponi il tuo prezzoProponi il tuo prezzo

Altre caratteristiche

Classe Energetica

Questo immobile è esente da classe energetica
Anno di costruzione:
1990
Riscaldamento:
Assente

Ti interessa visionare l'immobile?

Fissa un appuntamento  Fissa un appuntamento

Richiedi informazioni

Clicca su Leggi per aprire l'informativa
* Questi campi sono obbligatori

Calcola il tuo mutuo

Semplice e senza impegno
Anticipo

( % )
Mutuo

( % )

pochi semplici passi

inserisci i tuoi dati
Questionario completato
Grazie per aver richiesto un appuntamento senza impegno con un nostro Consulente del Credito e Assicurativo.

Hai inserito correttamente tutti i dati necessari e a breve riceverai una e-mail con un link da convalidare per inviare i tuoi dati.
Affiliato
Industriale Levante Srl
P.zza Della Franca, 7/8 16043 Chiavari (GE)

Il nostro staff


  • Nicola D'Accunto
    Affiliato

  • Danilo Alejandro Demartini
    Collaboratore

  • Francesca Marina
    Coordinatrice

  • Pablo Daniel Marzioni
    Collaboratore

  • Marta Poggianti
    Collaboratrice
P.zza Della Franca, 7/8 16043 Chiavari (GE)
Zona: Provincia Levante
Mostra su mappa
Affiliato
Industriale Levante Srl
P.zza Della Franca, 7/8 16043 Chiavari (GE)

2026 Tecnocasa Franchising S.p.A. - P. IVA 08365160152 - Via Monte Bianco 60/A 20089 Rozzano (MI). Ogni agenzia ha un proprio titolare ed è autonoma. Privacy policy | Policy utilizzo | Cookie policy