Capannone in affitto

Tribogna, Via Brughiera
€ 750 / mese
1 locale 1 locale
240 Mq 240 Mq

Capannone in affitto

Tribogna, Via Brughiera

Descrizione annuncio

COSA SAPERE DELL'IMMOBILE

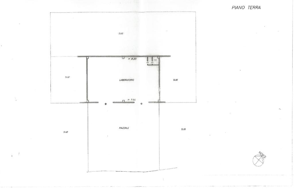
TRIBOGNA - CAPANNONE - 240 MQ

DESCRIZIONE E PARTICOLARITA'

Proponiamo in affitto capannone con le seguenti caratteristiche:

- superficie commerciale di circa 240 MQ

- 1 vano

- altezza interna 7 M circa

- accesso carrabile

- area esterna pertinenziale

- ingresso privato per raggiungere il complesso

- si affitta allo stato attuale

CONTRATTO

- commerciale 1+ 1

- garanzie info in agenzia

- canone soggetto a iva

UBICAZIONE E CONTESTO


Tribógna è un comune italiano sparso di 573 abitanti della città metropolitana di Genova in Liguria. La sede comunale è situata nella frazione di Garbarini.

Mostra tutto

Nelle vicinanze

Trasporto pubblico Trasporto pubblico
Tribogna-Via Piani
Tribogna-Via Piani
80 m
Trasporto pubblico
200 m
Ricariche auto elettriche Ricariche auto elettriche
Gattorna Commercio | EnelX
1,1 Km
Scuole Scuole
Scuola Secondaria di 1°grado di Gattorna
1,3 Km
Scuole
1,6 Km
Scuola dell'Infanzia di Ferrada
2,4 Km
Scuola Primaria di Ferrada
2,4 Km
Scuola Primaria di Ognio
2,5 Km
Farmacia Farmacia
Farmacia della Salute
1,6 Km
Supermercati Supermercati
Fransa
1,1 Km
Negozi Negozi
Al Forno
1,5 Km
Alimentari Rita
1,6 Km
Negozi
1,7 Km
Bar Bar
Alzati - Lazzaro
1,1 Km
Bar
1,1 Km
Bar Dablè
1,5 Km
Società Sportiva U.S.C.J.O.
1,6 Km
Ristoranti Ristoranti
La Madia
160 m
Murtà e Pestellu
320 m
Osteria centrale da Baldo
1,2 Km
Il Bandito
1,6 Km
Chiapparino
2,2 Km
Mostra tutto

Caratteristiche

Rif.:
61122242
Piano:
Terra
Condizionamento:
Assente
Ascensore:
No
Riscaldamento:
Assente
Libero:
Mostra tutto
Prezzo Prezzo
€ 750 / mese
Spese annue Spese annue
€ 150

Classe Energetica

Questo immobile è esente da classe energetica
Anno di costruzione:
2000
Riscaldamento:
Assente

Ti interessa visionare l'immobile?

Fissa un appuntamento  Fissa un appuntamento

Richiedi informazioni

Clicca su Leggi per aprire l'informativa
* Questi campi sono obbligatori
Affiliato
Industriale Levante Srl
P.zza Della Franca, 7/8 16043 Chiavari (GE)

Il nostro staff


  • Nicola D'Accunto
    Affiliato

  • Danilo Alejandro Demartini
    Collaboratore

  • Francesca Marina
    Coordinatrice

  • Pablo Daniel Marzioni
    Collaboratore

  • Marta Poggianti
    Collaboratrice
P.zza Della Franca, 7/8 16043 Chiavari (GE)
Zona: Provincia Levante
Mostra su mappa
Affiliato
Industriale Levante Srl
P.zza Della Franca, 7/8 16043 Chiavari (GE)

2026 Tecnocasa Franchising S.p.A. - P. IVA 08365160152 - Via Monte Bianco 60/A 20089 Rozzano (MI). Ogni agenzia ha un proprio titolare ed è autonoma. Privacy policy | Policy utilizzo | Cookie policy